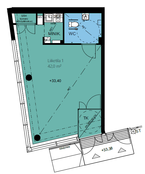
Lammenrannan Pysäköinti Oy:n pysäköintilaitoksessa sijaitsee kaksi liiketilaa, joita yhtiö vuokraa niitä tarvitseville. Liiketilat sijaitsevat erillisessä, muusta pysäköintilaitoksesta erotetussa siivessä Kuninkaantammenkierron varressa.
Liiketilojen koot ovat 42 m2 ja 48 m2. Tarkemmat tiedot löytyvät alla olevista pohjapiirustuksista. Lisätietoja liiketilojen vuokrauksesta saa sähköpostitse osoitteesta pia.pettersson@velvoitepysakointi.fi.
